Rødstensvilla med god planløsning og attraktiv beliggenhed
På en rolig, lukket vej i et eftertragtet område tæt på Lynghøjsøerne, står denne fine rødstensvilla fra 1966 og venter på nye ejere. Ejendommens 110 kvm fordeler sig ud på to værelser (mulighed for 3), et badeværelse, et køkken og en stue, mens en fuld kælder med endnu et badeværelse, en integreret garage og flere disponible rum supplerer. Grunden er på 760 kvm og byder på en grøn have med god plads omkring huset.
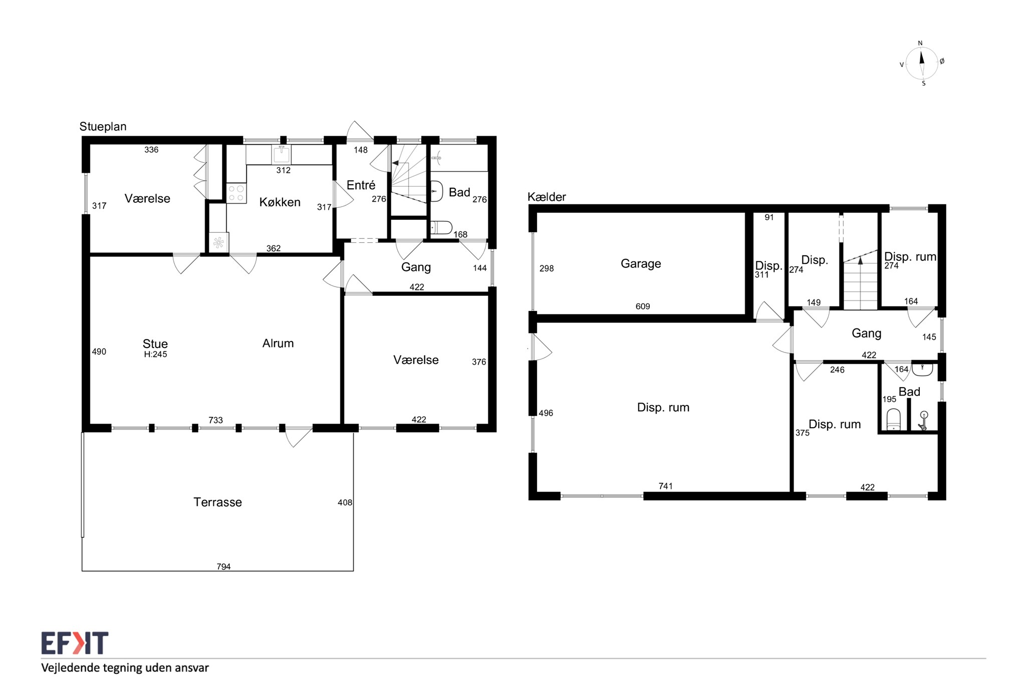
Stueplanet åbner med en entré, som fører til en fordelingsgang samt køkkenet. Sidstnævnte har igen forbindelse til stuen, og sammen udgør de to rum de centrale opholdsmiljøer i hjemmet. Herudover består etagen af to gode værelser (mulighed for 3) med et hav af indretningsmuligheder foruden et badeværelse med karbad.
Kælderen rummer flere disponible rum, endnu et badeværelse – denne gang med bruseafsnit – samt en garage. De disponible rum giver mange anvendelsesmuligheder, og således kan I få plads til eksempelvis opbevaring, værksted eller hobbyrum.
Ejendommen fremstår med potentiale og vil have gavn af en opdatering, men planløsningen er funktionel og giver et godt udgangspunkt for modernisering.
Beliggenheden er særligt attraktiv for jer, der ønsker nærhed til både natur og by. Her er få hundrede meter til Lynghøjsøerne og de rekreative stier og skovområder omkring området. Der er desuden sikker skolevej via et stisystem, flere indkøbsmuligheder og dagtilbud samt offentlig transport til Roskilde Station i nærområdet, som gør det nemt at komme til København eller Holbæk.
En ejendom med et solidt udgangspunkt, en god beliggenhed og mange muligheder for jer, der ønsker at skabe jeres eget hjem i et etableret og naturnært kvarter.



















